宴会場
【横浜ベイタワーホール】
約660㎡の大宴会場(3F)を始め、4つのバンケットルームをご用意しております。イベントや会議はもちろん、宴会、レセプション、研修などニーズに合わせてご利用いただけます。
ホールCD
| 広さ | 288.77㎡ |
|---|---|
| 天井高 | 4m |
| 収容人数 | スクール形式/80名程度 シアター形式/130名程度 着席/80名程度 立食形式/130名程度 |
| 料金 | 154,000円(税込)~ |
※ご利用日時によって料金を変更させていただく場合がございます。詳しくはお問い合わせください。
Reference layout
-
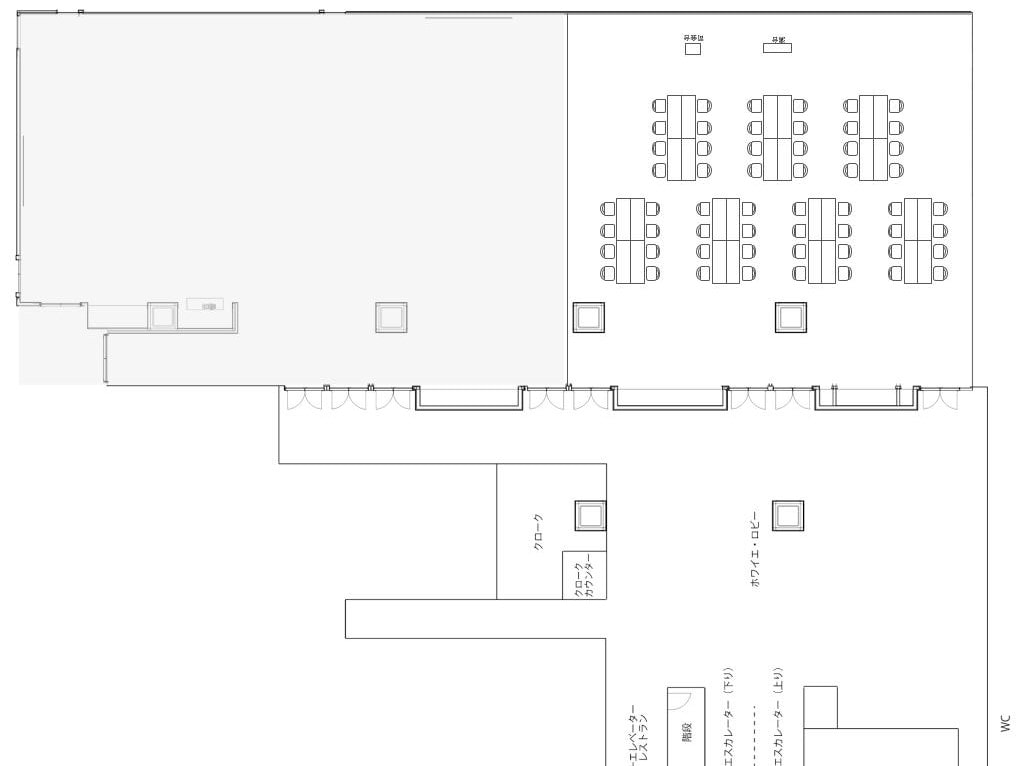
スクール形式CD
スクール形式50名レイアウト例 -
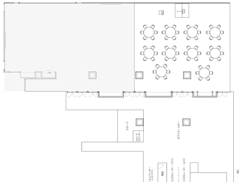
島形式CD
島形式8名掛け7島レイアウト例 -
パーティー形式CD(着席)
着席形式60名レイアウト例 -
パーティー形式CD(立食)
立食ビュッフェ形式レイアウト例





